Brandschutzfenster, -türen und -fassaden vom Profi
Das Thema Brandschutz nimmt sowohl im Objekt- als auch im Privatbau einen immer größeren Stellenwert ein. Mit heroal hat Giwe Fensterbau einen Partner an seiner Seite, der kontinuierlich an der Weiterentwicklung seiner Brandschutzsysteme arbeitet. So bietet Giwe Fensterbau Brandschutzsysteme für unterschiedlichste Einsatzzwecke sowohl für die Innen- als auch für die Außenanwendung an.
Neben
- Brandschutztüren,
- Brandschutzfenstern und
- Brandschutzfassaden haben wir auch das passende
- Brandschutzglas für Sie im Sortiment.
Brandschutzsysteme von heroal sind bis zur Brandschutzklassifizierung EI 90 geprüft und erfüllen geltende europäische Standards.
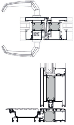
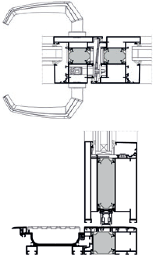
Brandschutztürsystem heroal D 82 FP (Fire Protection)
Das Brandschutztürsystem heroal D 82 FP ist besonders für stark frequentierte Bereiche geeignet.
Durch die konsequente Trennung von Kühl- und Funktionsnut gewährleistet das 5-Kammer-Profilsystem eine sichere und schnelle Verarbeitung sowie dauerhafte Nutzungs- und Funktionssicherheit. Dieses Brandschutztürsystem steht für langfristigen Komfort und Standsicherheit, auch im Brandfall. Die Profile können wahlweise mit oder ohne Dämmplattenfüllung geliefert werden.
Systemmaße und Systemeigenschaften
- 5-Kammer-Profilsystem: Uf ≥ 3,3 W / m2K
- Entwässerung und Belüftung der Rahmen und Flügel sichtbar
- Brand- und Rauchschutztüren geprüft nach DIN 4102-5 und DIN 18095-1
- EN 13116, EN 12208, EN 1207, EN 20 140-3, DIN V ENV 1627
- umlenkbare Verglasungsdichtung außen
- Flügel- und Türrahmen mit umlenkbarer Anschlagdichtung
- Türflügel mit absenkbarer Bodendichtung
- industriell gefertigter Glasfaserverbund
- neben der nationalen Zulassung weitere Zulassungen für Österreich, die Schweiz und die Niederlande
Gestaltungsvarianten und Design
- Öffnungsarten: Anschlagtüren nach innen und außen öffnend mit / ohne Festverglasung
- Kombination als Rauchschutztüren mit Schleppdichtung oder absenkbarer Bodendichtung möglich
- Einsatz von zwängungsfreien Türflügeln möglich
- Türbänder als Aufschraub- oder Rollenbänder, Materialien Aluminium oder Edelstahl
- Türfalzausbildung für F-Stulp-Schlösser: einfach, mehrfach oder in Fluchttürausführung nach DIN EN 179 / DIN EN 1125
- Profile mit und ohne Mineralfaserdämmplatten (optional bestellbar)
- Farbgestaltung mit hochwertiger heroal hwr-Pulverbeschichtung
Ein weiteres Plus des Brandschutztürsystems sind die nahezu unbegrenzten Gestaltungsmöglichkeiten. Optisch passen sich die Rauch- und Brandschutztüren nahtlos den bestehenden Türsystemen von heroal an und sind somit auch die optimale Lösung für die Modernisierung von Gebäuden.
Der Einsatz von Standardanschlussvarianten an verschiedenste Baukörper gewährleistet außerdem die einfache Herstellung und Montage.
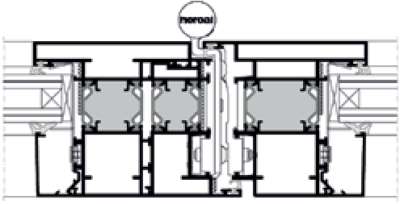
Brandschutzsystem heroal FireXtech D 93 FP
Brandschutzsystem für Europa
heroal FireXtech D 93 FP ist ein CE-zertifiziertes Brandschutzsystem, das sich durch den modularen Aufbau, die kurze Verarbeitungszeit und hervorragende statische Eigenschaften auszeichnet.
Das System bietet Brandschutzplanern, Architekten und Verarbeitern eine Systemlösung für die Innen- und Außenanwendung im Privat- und Objektbau.
- zertifizierter heroal Werksverbund, Bautiefe 93 mm
- modularer Systemaufbau – ein System für EI 30, EI 60 und EI 90
- kein Füllen der Innen- und Außenschalen für EI 30
- Klassifizierungsgrundlage EI 30
- geringer Mehraufwand um EI 60 und EI 90 zu erfüllen
- einheitliches Spaltmaß von 7 mm für DIN EN 179 / DIN EN 1125 für generelle Zwängungsfreiheit
- zertifizierte Außenanwendung für Tür & Verglasung
- durchlaufende heroal Schwellensysteme bis zur Nullbarriere mit Absenkdichtung
- Einsatz des bewährten Drainagesystem heroal DS

Systemeigenschaften
- EI 30 generell ohne Einschübe in T- und F-Bauteilen und dadurch Gewichtsreduzierung
- breites Spektrum mit flächenbündiger Ansicht:
- Außenansicht Rahmen ab 70 mm
- Außenansicht Flügel ab 68 mm
- 1 flg. lichter Durchgang: 1.450 x 3.000 mm
- 2 flg. lichter Durchgang: 2.850 x 3.000 mm
- keine mechanische Bearbeitung für Falle und Riegel
- klemmbare Rahmen- und Flügelsicherung
- klemmbare Bandseiten- und Halbschalensicherung
- identische Schloss- und Beschlagvielfalt wie bei dem Brand- und Rauschutzsystem heroal D 82 FP
- wahlweise klemm- oder schraubbare Beschlagbefestigung
- klemmbare Rollenbandsysteme, 3D einstellbar
- Ausführung in Aluminium & Edelstahl
- gleiche Befestigungsgrundlage
- Wechsel von Rollenbandkomponenten möglich
- alle bekannten Öffnungsarten und Bauformen:







